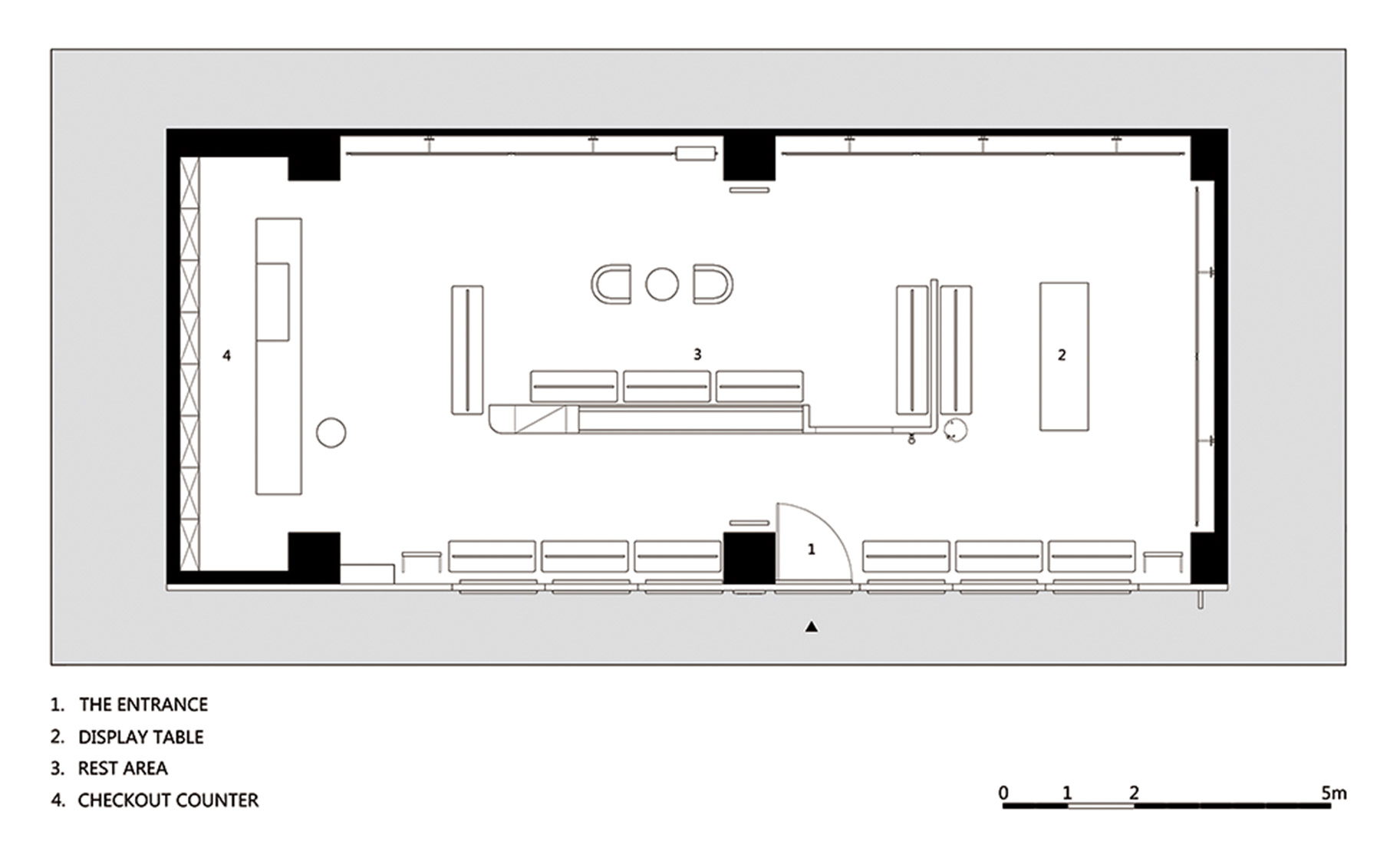
女装品牌专卖店设计
专卖店设计 空间设计
服务项目
- 品牌命名
- 品牌形象
- 品牌定位
- 品牌战略
- 品牌的声音
- 消费者洞察
- 竞争性审计
联系顾问
如果您正在寻找有关提供品牌策划与推广/专卖店设计等服务的设计公司,那么您并没有选错地方欢迎您通过以下方式与我们取得联系洽谈。
Office:A1101,ZhanTao Building,MinZhi Avenue,Longhuaxin District,Shenzhen,China
- 品牌顾问及咨询:杜先生
- 电话:18811873033
- 邮箱:dulinxing88@qq.com
- 地址:深圳市龙华新区民治大道展滔科技大厦A栋1101









更多内容:VI设计公司www.xicaodesign.com




